




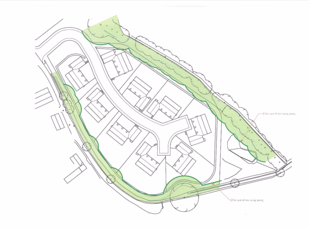
0.35-Acre Field Land for Sale in Gloucestershire
An outstanding opportunity, to acquire a three acres of freehold land with planning permission, for nine detached residential dwellings. Each plot is circa 0.35 acres each. Vacant possession.
0.35-Acre Field Land for Sale in Gloucestershire
Description
An outstanding opportunity, to acquire a three acres of freehold land with planning permission, for nine detached residential dwellings. Each plot is circa 0.35 acres each. Vacant possession.
Contact Agent
Smart Picks — Professionals Relevant to This Land
Based on this property's key features, here are the specialists you may want to consult as part of your due diligence: land agents, rics surveyors, rural solicitors and planning consultants.

Land Agents
Essential for navigating the land market, finding buyers, and securing the best price.

RICS Surveyors
High-value property (£1100K+) requires professional valuation for accurate pricing and due diligence.

Rural Solicitors
Significant investment (£1100K+) requires legal expertise for conveyancing, title checks, and transaction security.

Planning Consultants
Planning-sensitive site needs expert guidance for applications and development strategy.
Location
GL18 1JD